FRSC - Non Insulated Fire Shutter
This is the basic model of fire rated shutter for use where only fire integrity is needed.
| Tested to | BS EN 1634-1, AS 1530.4:2005, MS 1073:Pt 3:1996, UL 10B, NFPA 252 (2008), and ASTM E 2074 (00) |
| Maximum Size | W 12.0m x Ht 7.0m |
| Fire Rating | Up to 4 hrs fire integrity |
| Fire Insulation value | Not applicable |
Technical Data
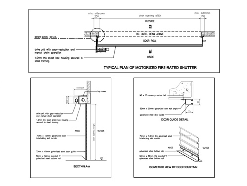
Drum Assembly
The barrel assembly consists of an extremely rigid steel tube sheathed over a pair of drive shaft assemblies fitted to heavy duty bearing sets and supported at both ends by steel head plates. The drive shaft is a solid polished-steel round bar incorporating key ways to accept the drive sprocket. Corresponding to the size of the shutter, the head plates are either 6mm or 8mm thick with shafts of either 38mm or 50mm diameter.
Door Curtain
Material
The door curtain is made up of sturdily designed galvanised steel scroll-profiled interlocking slats, 75mm high x 1.0 or 1.2mm thick.
Vision Lites
2 Nos. of 80 x 16 x 5mm thick ceramic fire lite glazing located at each side of the door curtain (at about 1.5m from the floor level) are available as an option. This is to allow for fireman vision in a fire situation when they arrive after the shutter is closed.
End Clips
Steel end-clips are secured to alternate slats to prevent lateral movements.
Wind-lock Clips
Where specified for external doors, steel wind-lock clips are provided at about 4-slat intervals to improve the wind loading capability of the shutters.
Bottom Rail
The bottom rail is an inverted 'T' formed by 2 lengths of 50mm x 50mm thick steel angle iron secured back-to-back through a scrolled bottom slat.
Bottom Weatherseal
Bottom weather seal is available as an option. This is not commonly available with most fire shutters. We can offer because we have fire tested to demonstrate that our weather seal does not compromise the fire integrity of our shutter.
Door Guides
Roll-formed galvanized steel guide channel of overall size 75mm x 65mm. The channels are secured or welded to a continuous length of wall angle sized 50mm x 50mm, spanning the entire height of the shutter and bolted to the walls of the door opening.
Door Operation
Motor Drive
The drive unit consists of a suitably-sized linear drive motor operator mounted parallel to and behind the door roll. It has an integrated gearbox and a chain-operated sheave wheel for manual operation in case of power failure. The control box is lockable, housing a set of push buttons for Up', 'Down' and 'Stop' operations. The door operation shall automatically stop at the desired upper and lower limits via adjustable limit switches.
For safety reasons, the 'DOWN' button shall require the operator to push and hold when closing the shutter. This is to ensure the closing operation is being supervised. Upon sighting an obstruction, the operator will automatically release the push button by reflex. This will instantly stop the downward travel of the shutter and prevent accidents.
Power supply shall be either Single Phase 230V x 15amp or 3 Phase 415V x 20amp, depending on the
